







პროექტის დეტალები
Client
Liquid Themes
Date
2022
Project
Interior Design
Get a Free Quote
Error: Contact form not found.
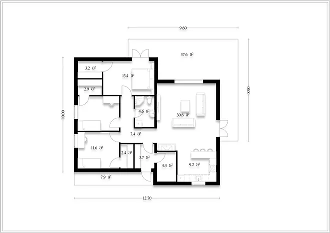
პროექტის დეტალები
საერთო ფართობი: 168.6 მ2
სახლის ფართობი: 123.0 მ2
ტერასის ფართობი: 45.6 მ2
საძირკველი: რკინა-ბეტონი
კედლები: პემზის ბლოკი (30x20x40)
ტიხრები: პემზის ბლოკი (10x20x40)
სახურავი: ხის კონსტრუქცია
გადახურვა: მეტალოკრამიტი/პროფნასტილი
მშენებლობის ფასი:
შავი კარკასი - 127500 ₾
თეთრი კარკასი - 191200 ₾
სრული რემონტით - 281500 ₾
Award-Winning Architecture
Through a unique combination of engineering, construction and design disciplines and expertise, Concor delivers world class infrastructure solutions. We embrace holistic development and support for employees.
Questions? You’re covered.
We embrace holistic development and support for employees with the aim of being a first-choice employer within our sectors. Through a unique combination of engineering, construction and design disciplines and expertise.
We embrace holistic development and support for employees with the aim of being a first-choice employer within our sectors. Through a unique combination of engineering, construction and design disciplines and expertise.
We embrace holistic development and support for employees with the aim of being a first-choice employer within our sectors. Through a unique combination of engineering, construction and design disciplines and expertise.